Stories Bar & Kitchen, R.R. Nagar, Bengaluru

Project typeHospitality
LocationR.R. Nagar, Bengaluru, Karnataka
Involvement StageGFC & Construction Phase
RoleArchitecture Intern
During my tenure atACME Designers

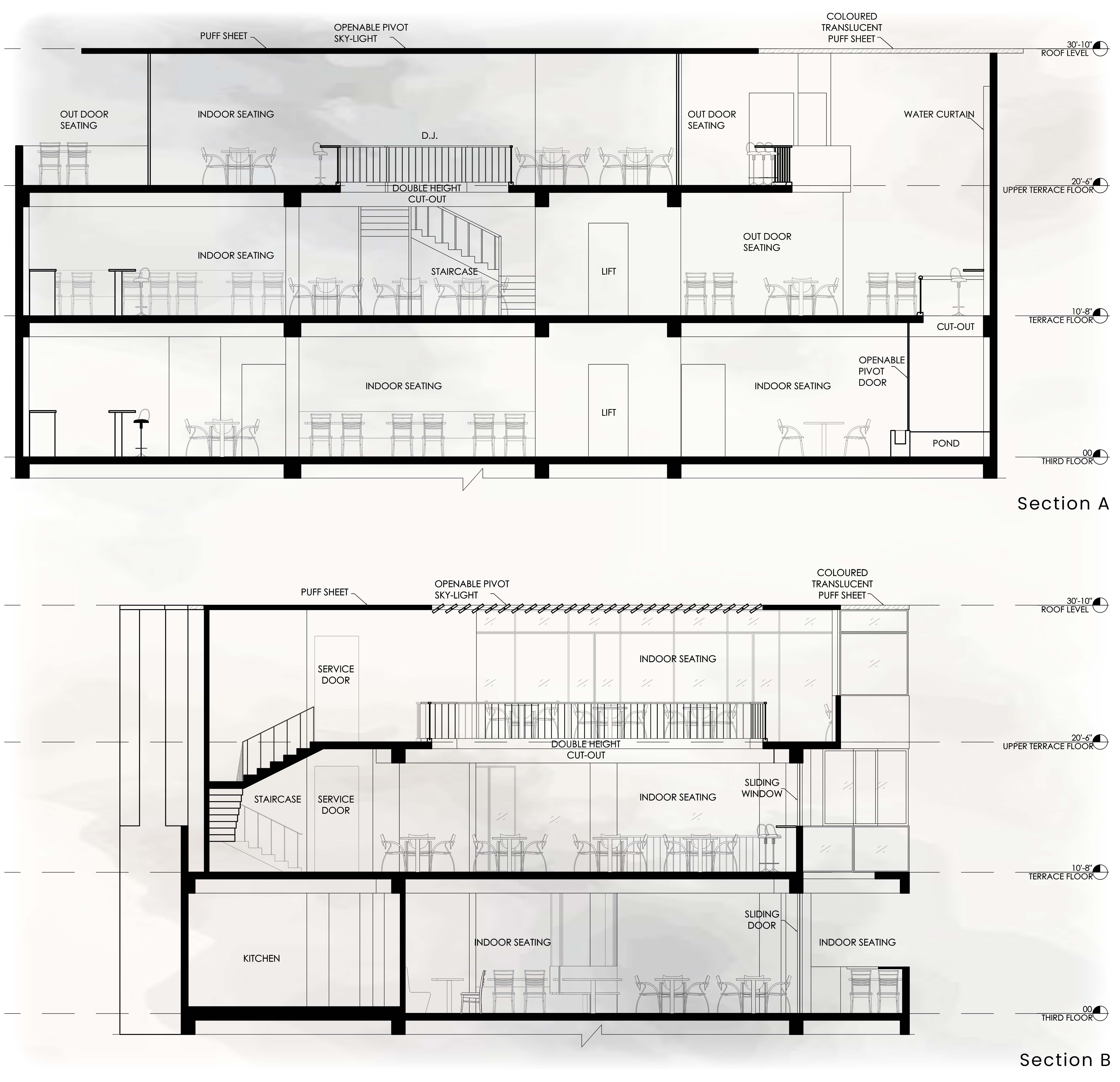
Occupying the upper two terrace levels, this venue is planned around a central clubbing zone that connects every area through cutouts, mezzanine links, and visual cross connections. The layout forms interconnected yet distinct zones, encouraging movement, interaction, and a cohesive energy throughout the space. Its minimalist industrial aesthetic blends exposed materials with greenery, highlighted by an outdoor deck featuring a reflective pool, palms, and a waterfall backdrop.

My key role was to develop working drawings and construction documentation for the project. Additionally, I conducted site visits during construction and installation for supervision and coordination.

A dynamic multi-level venue where connection, energy, and design come together seamlessly.

Aerial Render View

Complementing this spatial strategy, the venue offers closed, semi-private, open lounge areas, dining pockets, and a poolside zone, appealing to a wide range of visitors.
Its layered planning ensures multiple experiences while maintaining one unified, vibrant core.

Render View 01
Render View 02
Render View 03